

- Possession Start DateJul'15
- StatusCompleted
- Total Launched apartments115
- Launch DateSep'12
- AvailabilityResale
- RERA ID.
More about Jaithra Towers
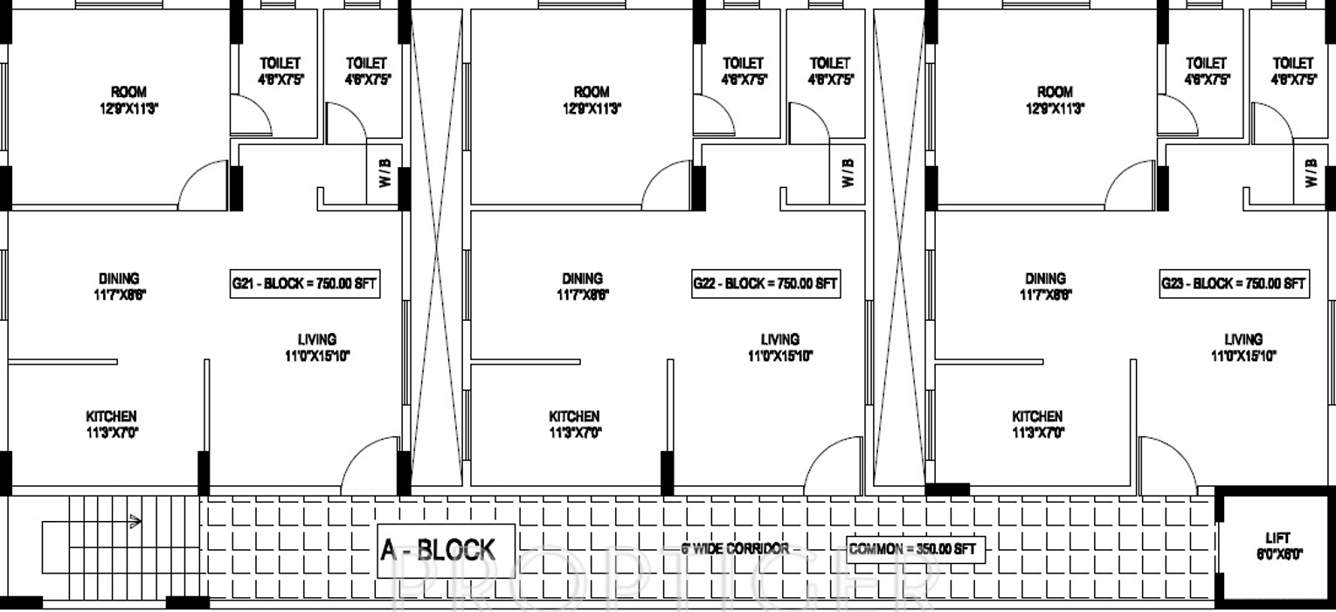
Jaithra Group brings to you Jaithra Towers, a residential project located in Chandapura, Bangalore. The project offers 1 and 2 BHK apartments with 115 units ranging from 750 to 1,200 sq. ft. The project is locates in the vicinity of many schools, hospitals, banks, ATMs, parks, petrol pumps and bus and train stations. Some of the most reputed schools in Chandapura include Nazareth School, B.T.L. High School and Ebenezer International School. Key hospitals operating in the area are Narayana Health...View more
Project Specifications
- 1 BHK
- 2 BHK
- 3 BHK
- Gymnasium
- Swimming Pool
- Children's play area
- Intercom
- 24 X 7 Security
- Power Backup
- Indoor Games
- Maintenance Staff
- Car Parking
- Badminton Court
- Landscape Garden and Tree Planting
- Flower Garden
Jaithra Towers Gallery
About Jaithra Projects

- Total Projects2
- Ongoing Projects0


























