

- Possession Start DateFeb'18
- StatusCompleted
- Total Area36 Acres
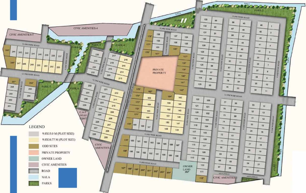
- Total Launched plots262
- Launch DateDec'14
- AvailabilityResale
- RERA IDPRM/KA/RERA/1251/308/PR/180328/001687
Salient Features
- Modern amenities like club house
- Accessibility to key landmarks
- Schools, hospitals, restaurants, banks are some of the civic amenities
More about S2 Homes Avenue
Avenue is a residential layout that stands out for its offerings. It's a gated community which is bestowed with great features. The layout comes with an array of amenities for an enjoyable living - jogging track, parks, children play area … Further, it's located close to Bangalore's major commercial hub - Marthahalli - Sarjapur IT corridor and Electronic City, thereby giving your plot the price appreciation advantage in the years to come. So come take the first step towards a happy tomorr...View more
![HDFC (5244) HDFC (5244)]()
![Axis Bank Axis Bank]()
![PNB Housing PNB Housing]()
![Indiabulls Indiabulls]()
![Citibank Citibank]()
![DHFL DHFL]()
![L&T Housing (DSA_LOSOT) L&T Housing (DSA_LOSOT)]()
![IIFL IIFL]()
- + 3 more banksshow less
S2 Homes Avenue Price List
| Area | Price |
|---|---|
| 1453 sq ft | - |
| 1500 sq ft | - |
| 1625 sq ft | - |
| 1650 sq ft | - |
| 1800 sq ft | - |
| 2200 sq ft | - |
| 2400 sq ft | - |
| 3000 sq ft | - |
- Children's play area
- Club House
- Rain Water Harvesting
- 24 X 7 Security
- Jogging Track
- Power Backup
- Avenue Trees on All Roads
- Entrance Arch
- High Grade Sanitary Lines
- Sewage Treatment Plant
- Landscape Garden and Tree Planting
- Cycling & Jogging Track
- Internal Roads & Footpaths
- Energy management
- Solar Water Heating
- Paved Compound
S2 Homes Avenue Gallery
About S2 Homes

- Total Projects9
- Ongoing Projects0

































