
25 Photos
PROJECT RERA ID : Rera Not Applicable
1211 sq ft 5 BHK 5T Villa in Madhuram Builders Anaadi Ananta Avenue
₹ 1.03 Cr
See inclusions
Project Location
Dehri Kalan, Bhopal
Basic Details
Amenities11
Specifications
Property Specifications
- Not LaunchedStatus
- Dec'27Possession Start Date
- 1211 sq ftSize
- 21 AcresTotal Area
- 1260Total Launched villas
- NewAvailability
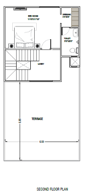
Price & Floorplan
5BHK+5T (1,211 sq ft)
₹ 1.03 Cr
See Price Inclusions

2D
- 5 Bathrooms
- 5 Bedrooms
Report Error
Gallery
Anaadi Ananta AvenueElevation
Anaadi Ananta AvenueVideos
Anaadi Ananta AvenueAmenities
Anaadi Ananta AvenueOthers
Other properties in Madhuram Builders Anaadi Ananta Avenue
- Plots
- 3 BHK
- 4 BHK
- 5 BHK
Contact NRI Helpdesk on
Whatsapp(Chat Only)
Whatsapp(Chat Only)
+91-96939-69347
Contact Helpdesk on
Whatsapp(Chat Only)
Whatsapp(Chat Only)
+91-96939-69347
About Madhuram Builders
Madhuram Builders
- 8
Total Projects - 3
Ongoing Projects - RERA ID
Similar Properties
- PT ASSIST
3BHK+3T (1,071 sq ft)by Balajee AssociateSankhediPrice on request - PT ASSIST
Aamra 3BHK+3T (1,210 sq ft)by Aamra GroupKolar Road, BhopalPrice on request - PT ASSIST
Lakshya 3BHK+2T (1,205 sq ft)by Lakshya GroupKolar Road, BhopalPrice on request - PT ASSIST
Sage 3BHK+3T (900 sq ft)by Sage RealtyKhasra No. 144/1/2/G, Bawadiya KalanPrice on request - PT ASSIST
Sage 4BHK+4T (1,320 sq ft)by Sage RealtyKhasra No 142/1/1, Bawadia Kalan, Gulmohar ColonyPrice on request
Discuss about Anaadi Ananta Avenue
comment
Disclaimer
PropTiger.com is not marketing this real estate project (“Project”) and is not acting on behalf of the developer of this Project. The Project has been displayed for information purposes only. The information displayed here is not provided by the developer and hence shall not be construed as an offer for sale or an advertisement for sale by PropTiger.com or by the developer.
The information and data published herein with respect to this Project are collected from publicly available sources. PropTiger.com does not validate or confirm the veracity of the information or guarantee its authenticity or the compliance of the Project with applicable law in particular the Real Estate (Regulation and Development) Act, 2016 (“Act”). Read Disclaimer
The information and data published herein with respect to this Project are collected from publicly available sources. PropTiger.com does not validate or confirm the veracity of the information or guarantee its authenticity or the compliance of the Project with applicable law in particular the Real Estate (Regulation and Development) Act, 2016 (“Act”). Read Disclaimer























