

- Possession Start DateJan'17
- StatusCompleted
- Total Launched apartments24
- Launch DateSep'14
- AvailabilityResale
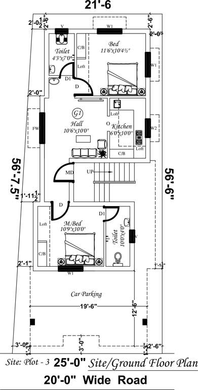
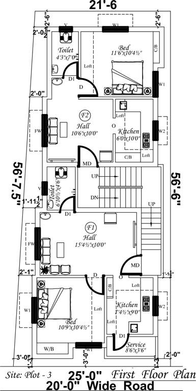
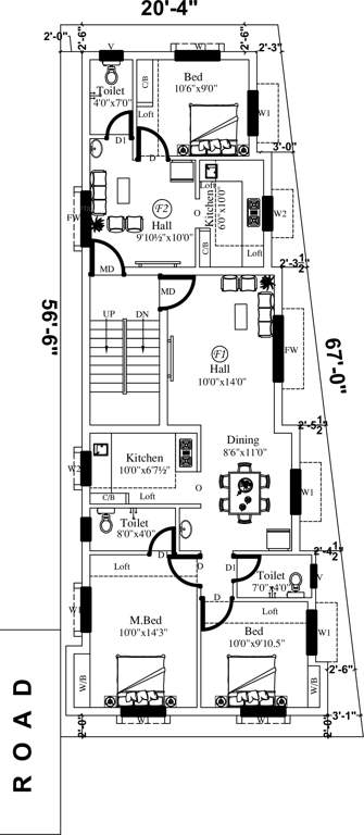
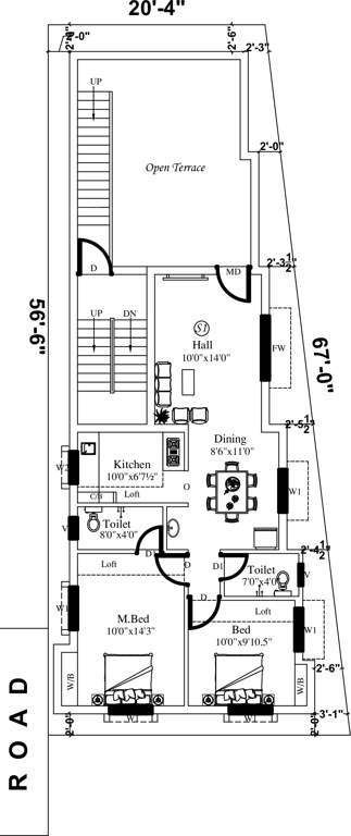
More about AV Brindhavanam
Brindhavanam Chennai is an initiative by AV Construction and comes with 1, 2 and 3 BHK apartments for buyers. Key amenities offered to residents include car parking facilities, rainwater harvesting systems, RO water provisions, sweet water, anti-termite treatments, Vaastu compliant architectural layouts and a sewage treatment plant.Located at Guduvancheri, the project is well linked to both Chengalpattu and Tambaram in addition to localities like Pandur, Thiruporur, Kayarambedu, Adhanur, Vellanc...View more
Project Specifications
- 1 BHK
- 2 BHK
- 3 BHK
- Rain Water Harvesting
- Car Parking
- RO Water
- Sewage Treatment Plant
- Vaastu Compliant
- Gymnasium
- 24 X 7 Security
- Children's play area
- Indoor Games
- Community Hall
- 24X7 Water Supply
- Gated Community
- Fire Fighting System
- Water Sports
- Anti-termite Treatment
- Landscape Garden and Tree Planting
- Vastu Compliant
- Conference Room
- RO Water System
AV Brindhavanam Gallery
Payment Plans

About AV Constructions

- Total Projects13
- Ongoing Projects2
























































