

- Possession Start DateJun'15
- StatusCompleted
- Total Launched apartments5
- Launch DateJan'13
- AvailabilityResale
- RERA ID.
Salient Features
- Smart homes, luxurious properties, intelligent home access control
- Cineplex are some of the civic amenities
More about Aura Rhythm
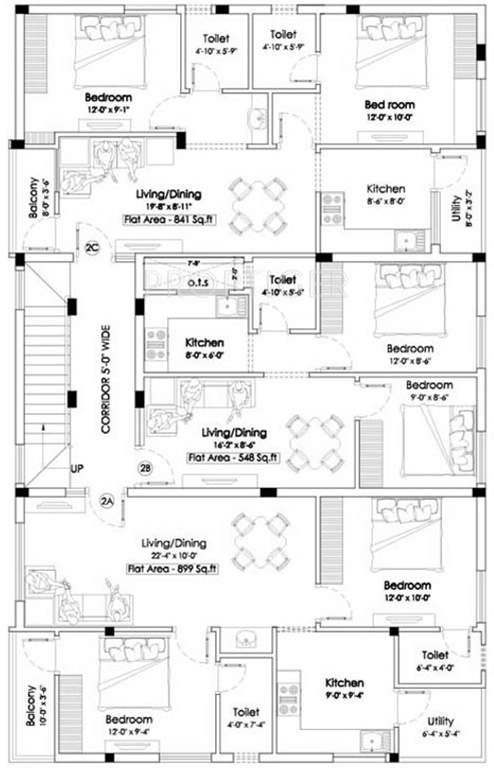
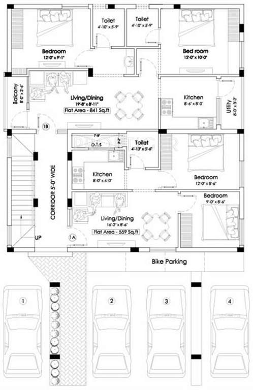
Aura Rhythm is a boon to those who have been dreaming to own a compact home for their family. Aura Rhythm has 2 BHK apartments starting from 548 Sq.ft & an astonishing value of just in an amazing location blessed with an excellent Civic infrastructure, well connected to every place in the city. And with all social convenience in the immediate neighbourhood. Aura Rhythm is a part of our Econo Smart series of Homes, that offers the assurance & advantage of an Aura Home with an amazing valu...View more
Project Specifications
- 2 BHK
- Rain Water Harvesting
- Car Parking
- Free Maintenance For One Year
- Full Power Backup
- Fully Covered Safety Grills In All Balconies & Service Areas
- Building Engineered With Solid Concrete Blocks
- Bike Park
- Closed Car Parking
- Internal Roads & Footpaths
- Vastu Compliant
- Mini Theatre
- Car Wash Area
Aura Rhythm Gallery
Payment Plans

About Aura Deziner

- Total Projects11
- Ongoing Projects0































