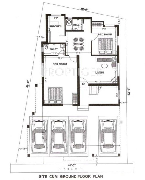
2 BHK Apartment
780 - 900 sq ft


Located in Kolathur, Chennai, VJ Lawn is a premium housing project launched by VJ Builders and Promoter. The project offers Apartment in 2 BHK configurations available from 780 sqft to 900 sqft. The project is Completed project and possession in Feb 13.
