
8 Photos
4751 sq ft 4 BHK 4T Apartment in Sun Estates Saipem Foothillsby Sun Estates
Price on request
Project Location
Calangute, Goa
Basic Details
Amenities4
Specifications
Property Specifications
- CompletedStatus
- Feb'15Possession Start Date
- 4751 sq ftSize
- 6Total Launched apartments
- Dec'12Launch Date
- ResaleAvailability
Candolim in Goa is a growing region which has many projects going on. The Sun Estates Developers Saipem Foothills Company is offering great apartments in this region in a project which is still under construction. There are many facilities nearby this area like bank, atm, restaurant, petrol pump, shopping mall, higher education facilities, commercial complex, hospital, park, school, play school, office complex, bus station, and much more. The area is also well accessible from all the parts of th...more
Approved for Home loans from following banks
Price & Floorplan
4BHK+4T (4,751 sq ft)
Price On Request

2D
- 4 Bathrooms
- 4 Bedrooms
Report Error
Gallery
Sun Saipem FoothillsElevation
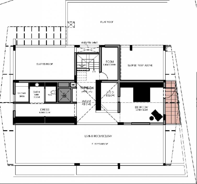
Sun Saipem FoothillsFloor Plans
Sun Saipem FoothillsNeighbourhood
Sun Saipem FoothillsOthers
Other properties in Sun Estates Saipem Foothills
- 3 BHK
- 4 BHK
Contact NRI Helpdesk on
Whatsapp(Chat Only)
Whatsapp(Chat Only)
+91-96939-69347
Contact Helpdesk on
Whatsapp(Chat Only)
Whatsapp(Chat Only)
+91-96939-69347
About Sun Estates

- 11
Total Projects - 2
Ongoing Projects - RERA ID
Sun Estates Developers belongs to that breed of developers who can truly claim to have mastered the art of harmonizing modern habitat design with natural landscapes. With no two units being the same, we have brought haute couture to real estate in its true sense. Having understood the need for a contemporary language in Goa's architecture, which is based strongly on the traditional idiom of courts, streets, shaded window, balconies and verandahs we have re-interpreted it in modern compositions o... read more
Similar Properties
- PT ASSIST
Saldanha 2BHKby Saldanha DevelopersChog-M Road, Opposite St. Alex Church, Saligao, GoaPrice on request - PT ASSIST
Chowgule 3BHK+3Tby ChowguleCalangute, GoaPrice on request - PT ASSIST
Chowgule 2BHK+2Tby ChowguleCalangute, GoaPrice on request - PT ASSIST
Models 3BHK+3Tby Models ConstructionSt Inez, Panjim, GoaPrice on request - PT ASSIST
Kurtarkar 2BHK+2Tby Kurtarkar Real EstateNear Panjim, GoaPrice on request
Discuss about Sun Saipem Foothills
comment
Disclaimer
PropTiger.com is not marketing this real estate project (“Project”) and is not acting on behalf of the developer of this Project. The Project has been displayed for information purposes only. The information displayed here is not provided by the developer and hence shall not be construed as an offer for sale or an advertisement for sale by PropTiger.com or by the developer.
The information and data published herein with respect to this Project are collected from publicly available sources. PropTiger.com does not validate or confirm the veracity of the information or guarantee its authenticity or the compliance of the Project with applicable law in particular the Real Estate (Regulation and Development) Act, 2016 (“Act”). Read Disclaimer
The information and data published herein with respect to this Project are collected from publicly available sources. PropTiger.com does not validate or confirm the veracity of the information or guarantee its authenticity or the compliance of the Project with applicable law in particular the Real Estate (Regulation and Development) Act, 2016 (“Act”). Read Disclaimer














