
18 Photos
PROJECT RERA ID : GGM/326/58/2019/20
457 sq ft 2 BHK 2T Apartment in MVN Infrastructure Athens
Price on request
Project Location
Sector 5 Sohna, Gurgaon
Basic Details
Amenities34
Specifications
Property Specifications
- CompletedStatus
- Sep'21Possession Start Date
- 6 AcresTotal Area
- 1106Total Launched apartments
- Aug'14Launch Date
- ResaleAvailability
Salient Features
- 10 Min drive Golf Course Extension
- 20 Min drive of Medanta Hospital
- Close to Industrial Area Sohna
- Second Project in Haryana Under Affordable Housing Scheme
- First Project Approved in Sohna, Gurgaon Under Affordable Housing Scheme
A realty project by MVN Infrastructure, Athens is strategically situated at Sector 5, Sohna, Gurgaon.. The project comprises of a total of 1078 units in all and is spread over an area of 6.5 acres. Buyers can choose from 1 BHK and 2 BHK apartments priced at INR 12.7 lakh and 17.8 lakh respectively. Apartment sizes range from 570 to 800 sq ft.Located in Sector 5, Sohna, the project is close to Sectors 33, 14, 35, 2 and 7 among others. There are several reputed educational institutions and hospita...more
Payment Plans

Price & Floorplan
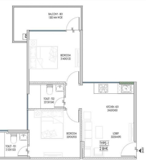
2BHK+2T (457 sq ft)
Price On Request

2D
- 2 Bathrooms
- 2 Bedrooms
- 457 sqft
carpet area
property size here is carpet area. Built-up area is now available
Report Error
Gallery
MVN AthensElevation
MVN AthensVideos
MVN AthensAmenities
MVN AthensFloor Plans
MVN AthensNeighbourhood
MVN AthensConstruction Updates
MVN AthensOthers
Other properties in MVN Infrastructure Athens
Contact NRI Helpdesk on
Whatsapp(Chat Only)
Whatsapp(Chat Only)
+91-96939-69347
Contact Helpdesk on
Whatsapp(Chat Only)
Whatsapp(Chat Only)
+91-96939-69347
About MVN Infrastructure

- 42
Years of Experience - 6
Total Projects - 3
Ongoing Projects - RERA ID
MVN Infrastructure started its journey in the year 1983 as a completely non-profit organization with a futuristic outlook. The company is today a conglomerate having business interest in both real estate and education. The portfolio of property by MVN Infrastructure mainly extends to the Delhi-National Capital Region including places like Sohna, Faridabad and Gurgaon. MVN Infrastructure is also coming up with several projects across other parts of the country. The company is rapidly diversifying... read more
Similar Properties
- PT ASSIST
GLS 2BHK+2T (467 sq ft)by GLSArawali Homes, Sector 4, Sohna, District GurugramPrice on request - PT ASSIST
GLS 3BHK+3T (643 sq ft)by GLSArawali Homes, Sector 4, Sohna, District GurugramPrice on request - PT ASSIST
1BHK+1T (390 sq ft)by Arete India ProjectsSector 6 SohnaPrice on request - PT ASSIST
2BHK+2T (602 sq ft)by Arete India ProjectsSector 6 SohnaPrice on request - PT ASSIST
Breez 1BHK+1T (449.15 sq ft)by BreezSector 33 SohnaPrice on request
Discuss about MVN Athens
comment
Disclaimer
PropTiger.com is not marketing this real estate project (“Project”) and is not acting on behalf of the developer of this Project. The Project has been displayed for information purposes only. The information displayed here is not provided by the developer and hence shall not be construed as an offer for sale or an advertisement for sale by PropTiger.com or by the developer.
The information and data published herein with respect to this Project are collected from publicly available sources. PropTiger.com does not validate or confirm the veracity of the information or guarantee its authenticity or the compliance of the Project with applicable law in particular the Real Estate (Regulation and Development) Act, 2016 (“Act”). Read Disclaimer
The information and data published herein with respect to this Project are collected from publicly available sources. PropTiger.com does not validate or confirm the veracity of the information or guarantee its authenticity or the compliance of the Project with applicable law in particular the Real Estate (Regulation and Development) Act, 2016 (“Act”). Read Disclaimer































