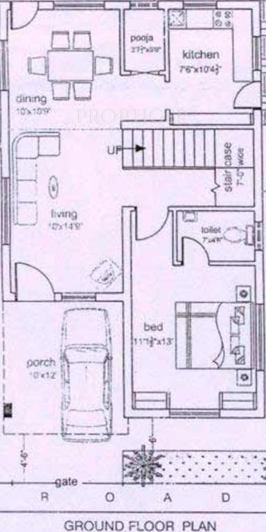
3 BHK Villa
1,786 - 1,794 sq ft


Located in Nizampet, Hyderabad, Eden Garden is a premium housing project launched by Rainbow Constructions. The project offers Villa in 3 BHK configurations available from 1786 sqft to 1794 sqft. The project is Completed project and possession in Dec 12. Eden Garden has many amenities, such as Over Head Water Tank, Children's play area, Common Septic Tank, 24 X 7 Security, Well Laid Out Roads etc.
