1,2,3 BHK Apartment
On request


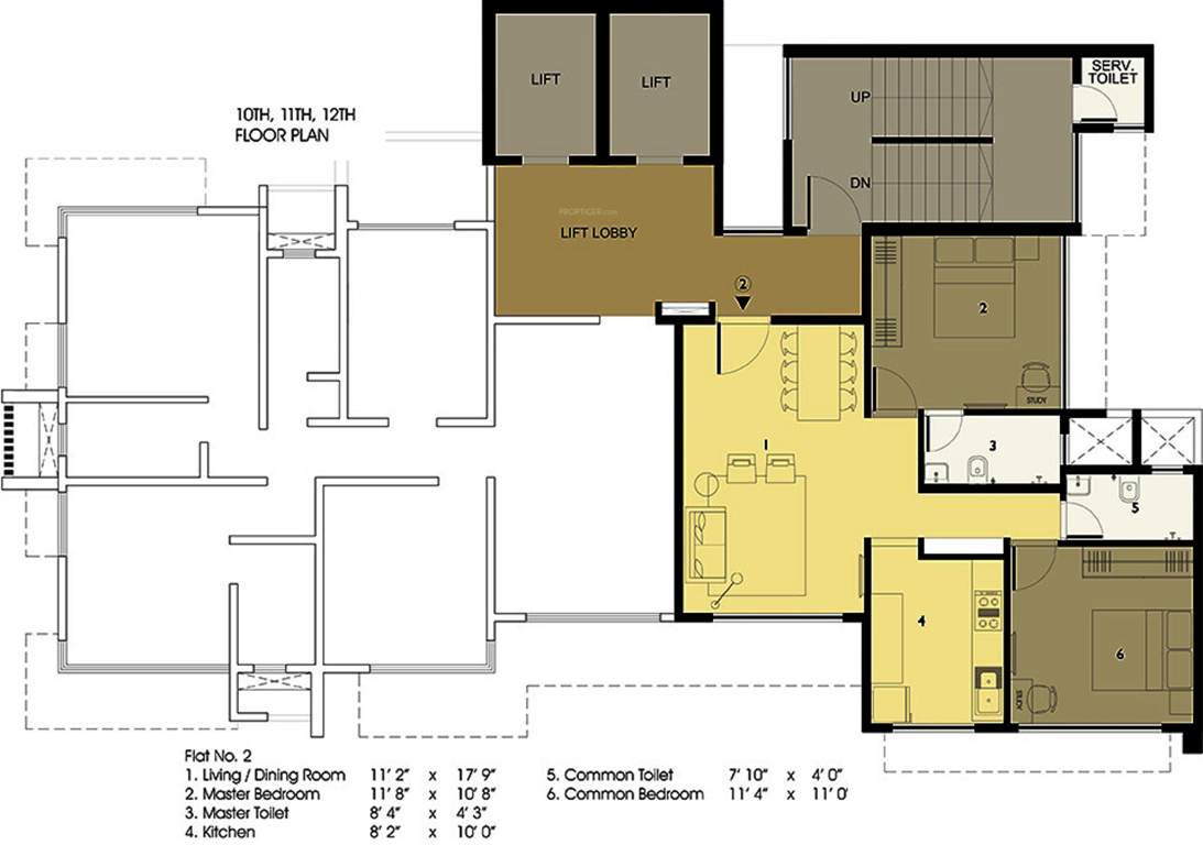
Avenue 14 is a premium housing project launched by Options Developers in Dadar East, Mumbai. These 2, 3 BHK Apartment in Mumbai South are available from 659 sqft to 843 sqft. Among the many luxurious amenities that the project hosts are Video Door Phone, Lift Available, Landscaped Gardens, Power Backup, Gymnasium etc.







