

- Possession Start DateJan'17
- StatusCompleted
- Total Launched apartments58
- Launch DateDec'13
- AvailabilityResale
Salient Features
- Luxurious properties
- Gokul residency is a residency that is equipped with all modern amenities and facilities required to lead a comfortable and enjoyable life
- This project serves the right choice for the home-buyers
- Landscape garden, children play area
More about D S Mumbai Gokul Residency
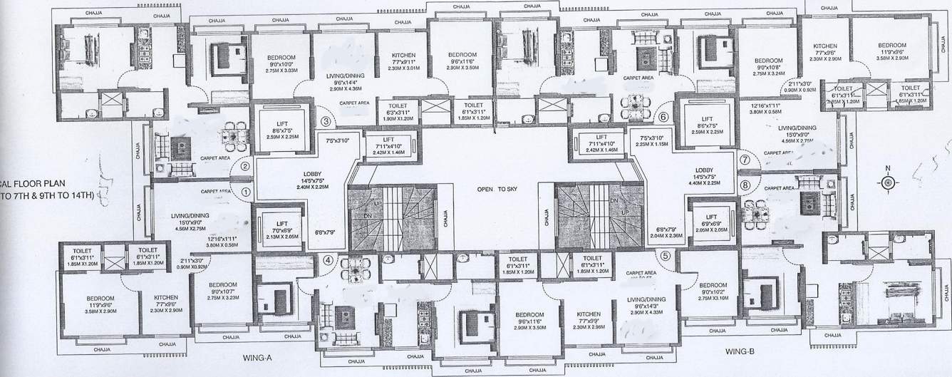
Located in Dahisar, Mumbai, Gokul Residency is a premium housing project launched by Mahavir Developers. The project offers Apartment in 2 BHK configurations available from 795 sqft to 908 sqft. These units in Andheri to Dahisar, are available at an attractive price points starting at @Rs 12,500 per sqft and will be available to buyers at a starting price of Rs 99.38 lacs. The project is Completed project and possession in Feb 17. Gokul Residency has many amenities, such as Intercom etc.
![HDFC (5244) HDFC (5244)]()
![Axis Bank Axis Bank]()
![PNB Housing PNB Housing]()
![Indiabulls Indiabulls]()
![Citibank Citibank]()
![DHFL DHFL]()
![L&T Housing (DSA_LOSOT) L&T Housing (DSA_LOSOT)]()
![IIFL IIFL]()
- + 3 more banksshow less
Project Specifications
- 2 BHK
- Intercom
- Power_Backup
- Lift_Available
- 24X7 Water Supply
- Landscape Garden and Tree Planting
D S Mumbai Gokul Residency Gallery
About D S Mumbai
- Total Projects3
- Ongoing Projects0




































