India's best property portal to buy property in India - Proptiger.com
Possession : Jun'25
Rera
Trimurti Construction Nallasopara Sagar Prakash CHSL
Price on request
Builder Price
Configuration
2 BHK
Carpet Area1 sq M = 10.76 sq ft
505 - 685 sq ft
Possession Status
Completed
Overview
  • Possession Start Date
    Jun'25
  • Status
    Completed
  • Total Area
    1.39 Acres
  • Availability
    Resale
  • RERA ID
    P99000021177

Salient Features

  • Located in a prime location
  • 3 open side properties
  • Spectacular view of national park
  • Accessibility to key landmarks
  • Schools, colleges, shopping, recreational in close vicinity
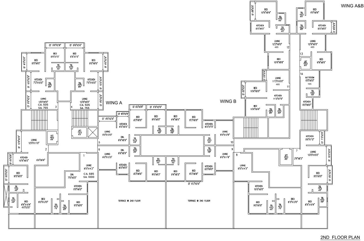
Trimurti Construction Nallasopara Sagar Prakash CHSL Floor Plans
  • 2 BHK
-
Trimurti Construction Nallasopara Sagar Prakash CHSL Amenities

About Trimurti Construction Nallasopara

  • Total Projects2
  • Ongoing Projects0

More projects by Trimurti Construction Nallasopara

Similar Projects

Developer Network

  • 400+
    Reputed Developers