
40 Photos
PROJECT RERA ID : PRM/KA/RERA/1250/304/PR/220623/006007
2512 sq ft 4 BHK 4T Villa in Kumari Infra Homes Nautilus
₹ 2.12 Cr
See inclusions
Project Location
Hoskote, Bangalore
Basic Details
Amenities8
Specifications
Property Specifications
- Under ConstructionStatus
- Jan'28Possession Start Date
- 2512 sq ftSize
- 10.08 AcresTotal Area
- 165Total Launched villas
- Sep'23Launch Date
- NewAvailability
Salient Features
- Enjoy abundant greenery with 80% open spaces, fostering a refreshing environment.
- Relish an active lifestyle with amenities including a swimming pool, football field, sun deck and badminton court.
- Easily commute from Whitefield Rail Station, just 3.4km away, ensuring convenient travel access.
- Find solace at SOUKYA Holy Trinity Chapel, a mere 2.9 km away, for spiritual reflection.
- Access quality education at Bangalore International Academy Whitefield, just 2.7km away, for academic excellence.
Price & Floorplan
Report Error
Gallery
Kumari NautilusElevation
Kumari NautilusVideos
Kumari NautilusAmenities
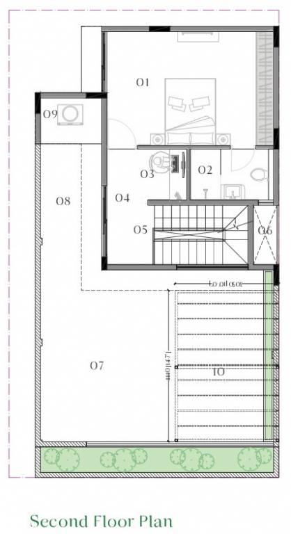
Kumari NautilusFloor Plans
Kumari NautilusNeighbourhood
Kumari NautilusConstruction Updates
Home Loan & EMI Calculator
Select a unit
Loan Amount( ₹ )
Loan Tenure(in Yrs)
Interest Rate (p.a.)
Monthly EMI: ₹ 0
Apply Homeloan
Other properties in Kumari Infra Homes Nautilus
- 4 BHK
Contact NRI Helpdesk on
Whatsapp(Chat Only)
Whatsapp(Chat Only)
+91-96939-69347
Contact Helpdesk on
Whatsapp(Chat Only)
Whatsapp(Chat Only)
+91-96939-69347
About Kumari Infra Homes
Kumari Infra Homes
- 1
Total Projects - 1
Ongoing Projects - RERA ID
Similar Properties
- PT ASSIST
Atmos 3BHK+3T (2,250 sq ft)by Atmos ConstructionsHoskote₹ 1.79 Cr - PT ASSIST
DSR 4BHK+4T (2,688 sq ft)by DSR InfrastructuresWhitefield Hope Farm Junction₹ 2.42 Cr - PT ASSIST
Mishitha 4BHK+4T (2,300 sq ft)by Mishitha ProjectsSy No 42/3 Ramaswamypalya, Next to Shri Ram Global School Samethanahalli, Whitefield off Varthur, Whitefield₹ 1.70 Cr - PT ASSIST
Atmos 4BHK+4T (2,675 sq ft)by Atmos ConstructionsHoskote₹ 1.94 Cr - PT ASSIST
Saritha 3BHK+3T (2,580 sq ft) + Study Roomby Saritha DevelopersThirumalashettyhally₹ 2.49 Cr
Discuss about Kumari Nautilus
comment
Disclaimer
PropTiger.com is not marketing this real estate project (“Project”) and is not acting on behalf of the developer of this Project. The Project has been displayed for information purposes only. The information displayed here is not provided by the developer and hence shall not be construed as an offer for sale or an advertisement for sale by PropTiger.com or by the developer.
The information and data published herein with respect to this Project are collected from publicly available sources. PropTiger.com does not validate or confirm the veracity of the information or guarantee its authenticity or the compliance of the Project with applicable law in particular the Real Estate (Regulation and Development) Act, 2016 (“Act”). Read Disclaimer
The information and data published herein with respect to this Project are collected from publicly available sources. PropTiger.com does not validate or confirm the veracity of the information or guarantee its authenticity or the compliance of the Project with applicable law in particular the Real Estate (Regulation and Development) Act, 2016 (“Act”). Read Disclaimer





























