
11 Photos
1659 sq ft 3 BHK 2T Apartment in Arjuntree Oneby Arjuntree
Price on request
Project Location
Margao, Goa
Basic Details
Amenities11
Specifications
Property Specifications
- CompletedStatus
- Dec'15Possession Start Date
- 1659 sq ftSize
- 11Total Launched apartments
- Sep'12Launch Date
- ResaleAvailability
Arjuntree One is an exceptional residential project by the Arjun tree Group in Margao, Goa. Margao is located in the suburbs near Goa Central. The housing project has a total of 11 units of 1, 2 and 3 BHK flats in the size area between 855 and 2,524 sq. ft. The flats are spacious as well as airy. Several leisure facilities provided within the premises like dual lifts, twin flush cisterns, solar water heaters, sewage treatment plant and grey water fully treated offer convenience to the residents....more
Approved for Home loans from following banks
Price & Floorplan
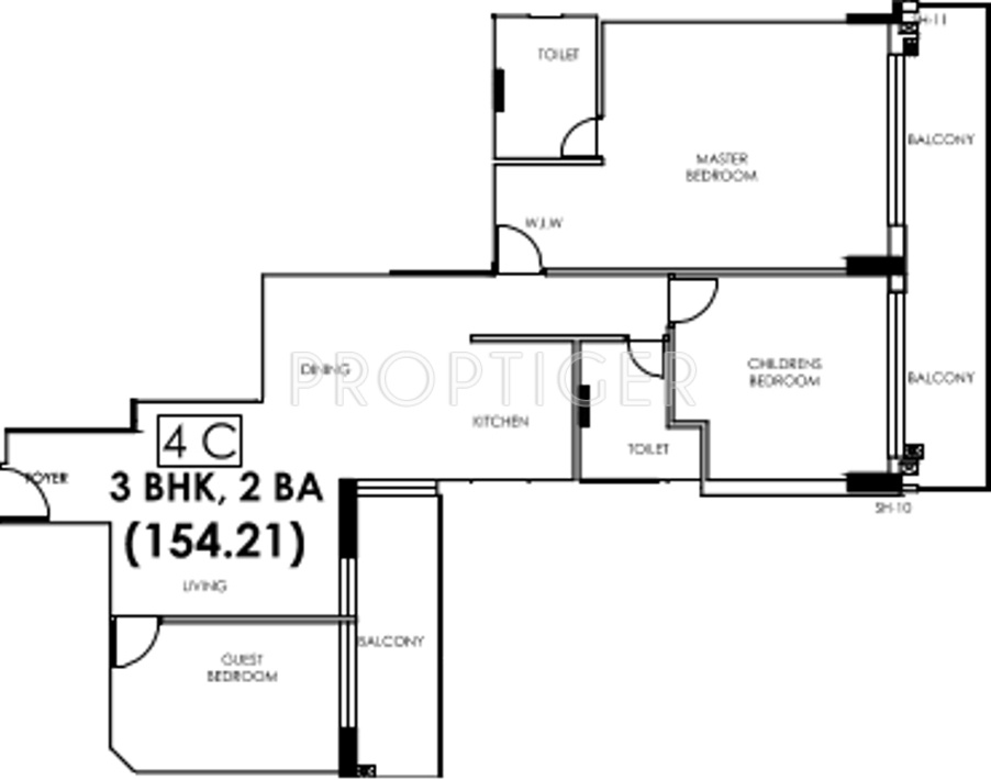
3BHK+2T (1,659 sq ft)
Price On Request

2D
- 2 Bathrooms
- 1 Balcony
- 3 Bedrooms
Report Error
Gallery
Arjuntree OneElevation
Arjuntree OneAmenities
Arjuntree OneFloor Plans
Arjuntree OneNeighbourhood
Arjuntree OneOthers
Other properties in Arjuntree One
- 1 BHK
- 2 BHK
- 3 BHK
Contact NRI Helpdesk on
Whatsapp(Chat Only)
Whatsapp(Chat Only)
+91-96939-69347
Contact Helpdesk on
Whatsapp(Chat Only)
Whatsapp(Chat Only)
+91-96939-69347
About Arjuntree

- 1
Total Projects - 0
Ongoing Projects - RERA ID
At Arjuntree, our belief is that all development should be with an eco-friendly conscience and we design our buildings with this in mind.True sustainable building designs consider the materials used, their emobodied energy, the process of construction, long term maintenance, the energy efficiency of the structure, waste management, rainwater harvesting and the use of renewable energy. Every structure has to be thoughtfully customized to meet these requirements. Often solutions for good ventilati... read more
Similar Properties
- PT ASSIST
GoodLuck 2BHK+2Tby GoodLuck DevelopersMargao, GoaPrice on request - PT ASSIST
Akar 3BHK+3T (1,500 sq ft)by Akar RealtyShirvodem, Navelim, Near MulgaoPrice on request - PT ASSIST
GoodLuck 1BHK+1Tby GoodLuck DevelopersMargao, GoaPrice on request - PT ASSIST
Nanu 3BHK+3T (1,413 sq ft)by Nanu EstatesFatorda, Margao, GoaPrice on request - PT ASSIST
Nanu 3BHK+3T (1,411 sq ft)by Nanu EstatesComba, Margao, GoaPrice on request
Discuss about Arjuntree One
comment
Disclaimer
PropTiger.com is not marketing this real estate project (“Project”) and is not acting on behalf of the developer of this Project. The Project has been displayed for information purposes only. The information displayed here is not provided by the developer and hence shall not be construed as an offer for sale or an advertisement for sale by PropTiger.com or by the developer.
The information and data published herein with respect to this Project are collected from publicly available sources. PropTiger.com does not validate or confirm the veracity of the information or guarantee its authenticity or the compliance of the Project with applicable law in particular the Real Estate (Regulation and Development) Act, 2016 (“Act”). Read Disclaimer
The information and data published herein with respect to this Project are collected from publicly available sources. PropTiger.com does not validate or confirm the veracity of the information or guarantee its authenticity or the compliance of the Project with applicable law in particular the Real Estate (Regulation and Development) Act, 2016 (“Act”). Read Disclaimer



































