
PROJECT RERA ID : RAJ/P/2018/726
868 sq ft 3 BHK 4T Villa in Sunprime Home Infra Sun Samriddhi
Price on request
Project Location
Pal Gaon, Jodhpur
 Basic Details
Property Specifications
- Under ConstructionStatus
 - Apr'23Possession Start Date
 - 2 AcresTotal Area
 - Apr'18Launch Date
 - New and ResaleAvailability
 
.
Price & Floorplan
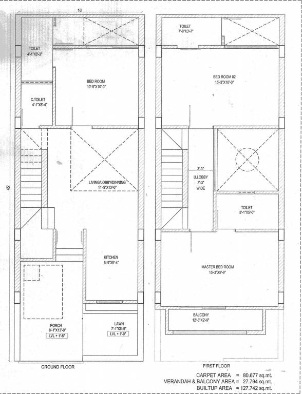
3BHK+4T (868.32 sq ft)
Price On Request

 2D
- 4 Bathrooms
 - 1 Balcony
 - 3 Bedrooms
 -  868 sqft
carpet area 
property size here is carpet area. Built-up area is now available
Report Error 
Gallery
Sunprime Sun SamriddhiElevation
Other properties in Sunprime Home Infra Sun Samriddhi
- 3 BHK
 
Contact NRI Helpdesk on 
Whatsapp(Chat Only)
Whatsapp(Chat Only)
+91-96939-69347
Contact Helpdesk on 
Whatsapp(Chat Only)
Whatsapp(Chat Only)
+91-96939-69347
About Sunprime Home Infra

- 1 
Total Projects - 1 
Ongoing Projects - RERA ID
 
Similar Properties
- PT ASSIST
Thar 3BHK+3T (2,069.79 sq ft)by Thar LifespacesPal Gaon, JodhpurPrice on request - PT ASSIST
Dream Saarthi 2BHK+2T (354.03 sq ft)by Dream Saarthi Builder And DeveloperKhasara No. 143/2, Near Sidhi Vinayak Nagar, Behind Reliance Petrol Pump, Pal Village, Gangana RoadPrice on request - PT ASSIST
Manish Kumar Dharamchan Chhajer 2BHK+2T (645.83 sq ft)by Manish Kumar Dharamchan ChhajerKhasra No. 276/7, 276/8, Pal GaonPrice on request - PT ASSIST
Manish Kumar Dharamchan Chhajer 1BHK+1T (322.92 sq ft)by Manish Kumar Dharamchan ChhajerKhasra No. 276/7, 276/8, Pal GaonPrice on request - PT ASSIST
Karni 3BHK+4Tby Karni BanshiMan Pal Road, Near Badhu Market, Near Pal Gaon, JodhpurPrice on request 
Discuss about Sunprime Sun Samriddhi
comment
Disclaimer
PropTiger.com is not marketing this real estate project (“Project”) and is not acting on behalf of the developer of this Project. The Project has been displayed for information purposes only. The information displayed here is not provided by the developer and hence shall not be construed as an offer for sale or an advertisement for sale by PropTiger.com or by the developer.
The information and data published herein with respect to this Project are collected from publicly available sources. PropTiger.com does not validate or confirm the veracity of the information or guarantee its authenticity or the compliance of the Project with applicable law in particular the Real Estate (Regulation and Development) Act, 2016 (“Act”). Read Disclaimer
The information and data published herein with respect to this Project are collected from publicly available sources. PropTiger.com does not validate or confirm the veracity of the information or guarantee its authenticity or the compliance of the Project with applicable law in particular the Real Estate (Regulation and Development) Act, 2016 (“Act”). Read Disclaimer




















